Cherokee County Industrial Building

610 Hogan Pond lane, ball ground, georgia 30107

$1,200,000 4,000 sf

Brand-New Light Industrial Building | Ball Ground, Cherokee County

This new construction ±4,000 SF light industrial building represents a rare opportunity in the highly sought-after Ball Ground submarket of Cherokee County, where available industrial inventory is extremely limited.

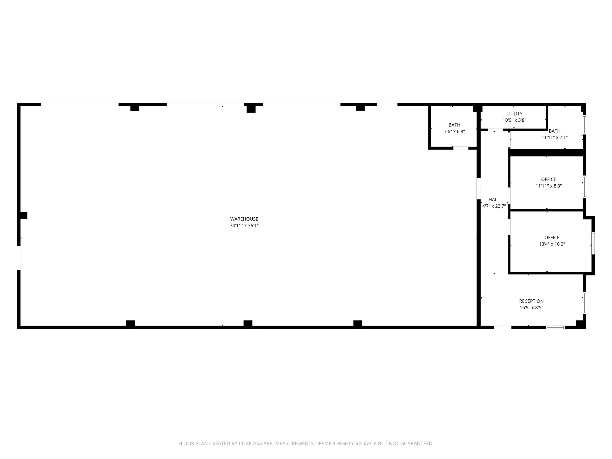
The building is designed for efficient operations and flexibility, featuring three (3) drive-in doors, 18–20 foot clear ceiling heights, two private offices, three-phase power, and access to an 8-inch water main, supporting a wide range of light industrial and service uses. Recent site improvements include expanded parking and a dedicated turnaround area, enhancing truck circulation and functionality. The property is situated on a cul-de-sac, offering both privacy and ease of access.

Additional upside exists through a potential assemblage opportunity, as both adjacent land tracts are also available. One neighboring parcel consists of approximately 6 acres already zoned LI (Light Industrial), while the other is a ±60-acre tract offering long-term development and expansion potential. Together, these parcels create a compelling opportunity for users or investors seeking to control a larger industrial footprint in a high-growth corridor.

The location provides excellent regional connectivity with quick access to Cumming and Forsyth County, Canton, Milton/Alpharetta, I-575, and the broader North Metro Atlanta market—making this a strategic industrial opportunity in one of Cherokee County’s fastest-growing areas.

PROPERTY HIGHLIGHTS:

  • Brand-new ±4,000 SF light industrial building

  • Three drive-in doors | 18–20′ clear heights

  • Two offices | 3-phase power | 8″ water main

  • Expanded parking and truck turnaround area

  • Assemblage opportunity for future expansion

  • Prime Ball Ground location with quick access to I-575, Forsyth County & North Metro Atlanta

Previous
Previous

W. Union Grove Circle

Next
Next

Hogan Pond